Sauna remorque EGOA BUSINESS EGO
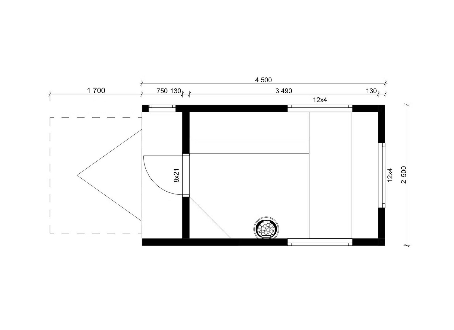
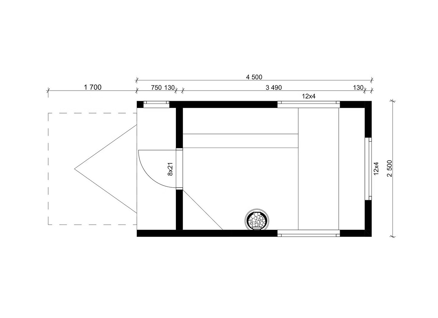
6 personnes - L: 450 cm - l:250 cm - H: 380 cm
Sauna remorque BUSINESS EGO
Sauna professionnel clé en main – Fabrication finlandaise
Description générale
Le Business Ego est un sauna professionnel conçu pour un usage commercial intensif (hôtellerie, centres de bien-être, resorts, glamping, bases de loisirs).
Unité livrée entièrement assemblée, prête à l’exploitation, avec isolation renforcée et matériaux premium adaptés à une utilisation fréquente.
Structure & Construction
- Type : Sauna mobile / semi-permanent (selon configuration)
- Structure porteuse : Ossature bois massif finlandais
- Isolation thermique : Isolation multicouche haute performance adaptée aux climats froids
- Pare-vapeur : Membrane aluminium haute résistance
- Revêtement extérieur : Bardage bois traité (horizontal ou vertical selon option)
- Revêtement intérieur : Bois sauna premium (épicéa, tremble ou autre selon finition)
- Châssis : Structure acier galvanisé (version remorque)
- Plancher : Structure isolée renforcée pour usage intensif
Capacité & Aménagement
- Capacité d’accueil : env. 4 à 8 personnes (selon modèle)
- Banquettes : Configuration à niveaux multiples
- Dossier ergonomique intégré
- Éclairage intérieur : LED indirect IP adapté milieu humide
- Fenêtre(s) : Double vitrage sécurisé (selon version)
- Porte : Verre trempé sécurité
- Options possibles :
- Vestiaire / dressing intégré
- Zone de lavage
- Terrasse extérieure
- WC intégré (selon modèle)
Système de Chauffage
- Type de poêle : Électrique ou bois (selon configuration)
- Puissance : adaptée au volume intérieur
- Commande : Panneau de contrôle externe
- Temps de montée en température : optimisé pour usage commercial
Performance & Exploitation
- Utilisation 4 saisons
- Isolation conçue pour limiter les pertes énergétiques
- Conception adaptée à une exploitation professionnelle intensive
- Entretien simplifié grâce aux matériaux résistants à l’humidité
Installation & Logistique
- Livraison clé en main
- Aucune fondation lourde requise (version mobile)
- Mise en service rapide
- Raccordement électrique simple (selon normes locales)
- Transportable sur site via remorque homologuée (version mobile)
Applications Professionnelles
- Hôtels & Resorts
- Spas & Centres bien-être
- Campings & Glamping
- Stations de montagne
- Exploitation événementielle
- Location saisonnière premium
Avantages techniques clés
- Fabrication finlandaise conforme aux standards sauna traditionnels
- Structure robuste adaptée aux conditions climatiques nordiques
- Optimisé pour rentabilité commerciale
- Mobilité stratégique (selon version)
- Solution immédiatement exploitable
Trailer & Mobility – Sauna mobile homologué UE
Tous nos modèles sont montés sur un châssis de remorque freiné immatriculé, classifié comme dispositif tractable. Ils sont homologués pour une utilisation dans l’Union européenne et l’EEE, garantissant conformité et sécurité lors du transport.
Châssis détachable en option
Une version avec châssis détachable est disponible, permettant le transport par camion et l’installation permanente.
Cette option est idéale pour :
- une installation fixe
- une intégration près d’une piscine ou d’un spa
- des applications bien-être à usage professionnel ou résidentiel
Poêle pour votre sauna remorque
Le choix du poêle est essentiel pour des performances optimales. Contactez-nous pour un conseil personnalisé adapté à votre configuration et à votre usage.
Type de poêle de sauna
- Bois
Longueur du sauna
- 450 cm
Largeur du sauna
- 250 cm
Hauteur du sauna
- 380 cm
Nombre de personnes
- 6 personnes
Toiture du sauna
- Toiture métallique à joints debout
Type de bois
- Epicéa massif
Epaisseur des parois
- 31 × 98 mm
Type de parois
- Bois massif
Forme du sauna
- Rectangulaire
Terrasse
- Lames rainurées en bois traité sous pression (28 × 120 mm)
Fonctionnalités
- Disjoncteurs automatiques
Disjoncteurs automatiques
Isolation : mousse aluminium 30 mm
Plancher en pin thermotraité
Plancher en pin thermotraité
Revêtement intérieur : panneaux d’épicéa (14 × 120 mm)
Éclairage LED Type de bois des bancs
- Epicéa massif
Modèle
- BUSINESS EGO








