Sauna remorque EGOA LUXUS EGO
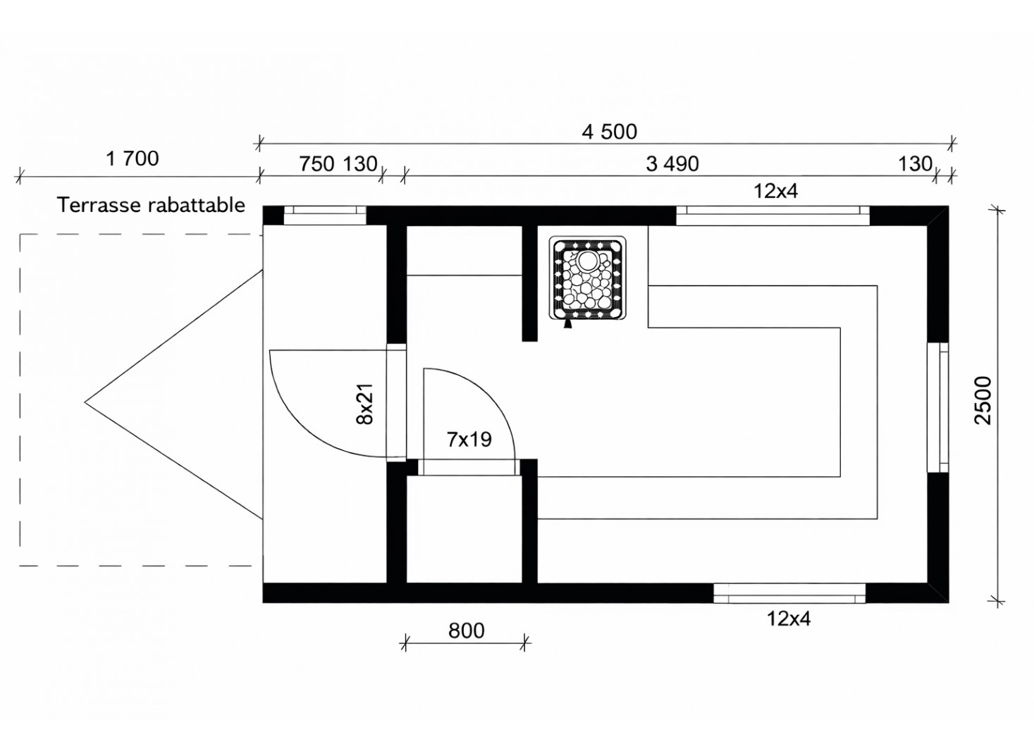
8 personnes - L: 450 cm - l:250 cm - H: 380 cm
Sauna Remorque Luxus Ego – L’ultime expérience sauna mobile par EGOA
Découvrez le sauna remorque Luxus Ego de EGOA, une solution sauna mobile haut de gamme pensée pour ceux qui souhaitent profiter d’un espace bien-être raffiné, spacieux et luxueux, sans les contraintes traditionnelles de construction. Véritable chef-d’œuvre parmi les saunas portables, le Luxus Ego allie design finlandais élégant, matériaux premium et confort incomparable pour une expérience sauna exceptionnelle où que vous soyez.
Le Luxus Ego est livré entièrement assemblé et prêt à l’emploi, ce qui signifie qu’il n’est pas nécessaire d’obtenir de permis de construire, de réaliser des travaux de fondation ou des projets longs et coûteux. Grâce à sa plateforme mobile, il peut être installé facilement à l’emplacement de votre choix — que ce soit pour une résidence de prestige, un centre de bien-être, un hôtel, un camping haut de gamme ou un projet événementiel.
Les principaux atouts du Luxus Ego:
- Expérience sauna luxueuse — Un espace généreux avec banquettes extra-larges, thermiquement isolé pour un confort optimal toute l’année, même en hiver grâce à une structure thermique renforcée.
- Design sophistiqué et élégant — Esthétique intemporelle avec ambiance lumineuse raffinée qui crée une atmosphère chaleureuse et apaisante dès le premier regard.
- Confort pratique — Équipé d’une penderie/dressing et d’un WC intégrés, répondant aux besoins quotidiens et offrant une expérience complète et confortable.
- Terrasse rotative connectable — Terrasse intégrée pouvant être connectée directement à une caravane ou à une unité d’hébergement, étendant l’espace de détente et créant une fluidité entre intérieur et extérieur.
Une solution idéale pour :
- Les entreprises du bien-être et de l’hôtellerie désireuses d’offrir une expérience sauna premium.
- Les organisateurs d’événements cherchant une attraction de luxe dans des lieux variés.
- Les particuliers exigeants souhaitant un espace sauna haut de gamme, immédiatement opérationnel.
Le sauna Luxus Ego représente l’alliance parfaite entre mobilité, luxe et confort, offrant une expérience sauna haut de gamme partout, à tout moment, sans compromis sur la qualité ou le style.
Trailer & Mobility – Sauna mobile homologué UE
Tous nos modèles sont montés sur un châssis de remorque freiné immatriculé, classifié comme dispositif tractable. Ils sont homologués pour une utilisation dans l’Union européenne et l’EEE, garantissant conformité et sécurité lors du transport.
Châssis détachable en option
Une version avec châssis détachable est disponible, permettant le transport par camion et l’installation permanente.
Cette option est idéale pour :
- une installation fixe
- une intégration près d’une piscine ou d’un spa
- des applications bien-être à usage professionnel ou résidentiel
Poêle pour votre sauna remorque
Le choix du poêle est essentiel pour des performances optimales. Contactez-nous pour un conseil personnalisé adapté à votre configuration et à votre usage.
Longueur du sauna
- 450 cm
Largeur du sauna
- 250 cm
Hauteur du sauna
- 380 cm
Nombre de personnes
- 8 personnes
Toiture du sauna
- Toiture métallique à joints debout
Type de bois
- Epicéa massif
Epaisseur des parois
- 31 × 98 mm
Type de parois
- Bois massif
Forme du sauna
- Rectangulaire
Terrasse
- Lames rainurées en bois traité sous pression (28 × 120 mm)
Fonctionnalités
- Disjoncteurs automatiques
Isolation : mousse aluminium 30 mm
Plancher en pin thermotraité
Plancher incliné avec caniveau d’évacuation
Revêtement intérieur : panneaux d’épicéa (14 × 120 mm)
Ventilateur d’extraction
Éclairage LED Type de bois des bancs
- Epicéa massif
Modèle
- LUXUS EGO




